Reserved

The Lapwing

Plot 41Fallows Watch - 70% Now Sold!, Little Easton , Essex

Style
Detached
Bedrooms
5 bedrooms
Reserved
01371 532019

Open Thursday - Monday, 10am to 5pm

Share this property

*Flooring included throughout*

Plot 41, The Lapwing is a generously proportioned five-bedroom family home, offering over 2,100 sq ft of beautifully designed living space, complete with a double garage and private parking.

The formal living room is a statement of timeless luxury, featuring a stunning Inglenook fireplace with a Hunter Herald wood-burning stove framed by a hand-crafted oak beam — a perfect blend of classic charm and modern comfort. The spacious family area flows effortlessly into the sophisticated kitchen and dining space, where premium integrated Bosch appliances and sleek downlighting create a bright, inviting atmosphere for both everyday living and entertaining. French doors from both the living and family rooms open onto the expansive garden, inviting natural light and offering seamless indoor-outdoor living. A separate utility room provides practical convenience while maintaining the home’s polished aesthetic, and the stylish cloakroom completes the ground floor.

Upstairs, five spacious bedrooms provide ample accommodation, including two with luxurious en-suite bathrooms and three with built-in wardrobes. The family bathroom, en-suites, utility, and W/C are all enhanced with stylish downlighting, underscoring the home’s attention to detail and quality finishes.

2101 SQFT | Service Charge – £263.94 per plot | Flooring and turf not included as standard.

The Lapwing

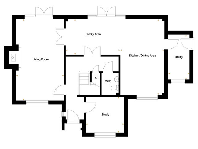
Floorplan

Ground Floor

Kitchen/Dining Area 6.359m x 3.681m 20’11” x 12’1”
Family Area 4.590m x 2.985m 15’1” x 9’10”
Living Room 6.809m x 4.013m 22’4” x 13’2”
Study 3.208m x 3.000m 10’6” x 9’10”
Utility 3.755m x 1.745m 12’4” x 5’9”

First Floor

Master Bedroom 3.936m x 3.486m 12’11” x 11’5″
Bedroom 2 3.591m x 3.291m 11’9” x 10’10”
Bedroom 3 3.303m x 2.723m 10’10” x 8’11”
Bedroom 4 3.208m x 3.000m 10’6” x 9’10”
Bedroom 5 2.840m x 2.550m 9’4” x 8’4”

Fallows Watch - 70% Now Sold!

Siteplan

Discover Our Stunning Developments

If you’d like to see the full brochure for this development add your details to the form and we’ll send you a link which will allow you to download it in PDF format. If you’d prefer to browse the brochure in its physical form, get in touch with us and we will send you a copy in the post.

REGISTER NOW TO RECEIVE A BROCHURE